Großzügige, helle Wohnung in wunderschöner Villa in Sigmarszell
Großzügige, helle Wohnung in wunderschöner Villa in Sigmarszell
Energieausweis
Kosten
Ausführliche Beschreibung
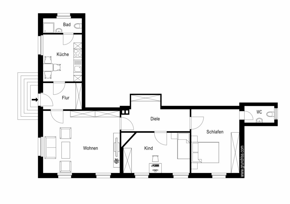
Die EG-Wohnung befindet sich in einer schönen, alten Villa in Sigmarszell.
Die EG Wohnung, mit eigenem Eingang, wurde 2010 komplett saniert.
Sie ist ausgestattet mit:
- großem Eingangsbereich
- schönen großen, hohen Räumen
- großzügiger Flurbereich mit Abstellmöglichkeit
- einer großen Terrasse
- einer neuen Einbauküche mit allen Geräten und Waschmaschinenanschluss
- großer Wohn- Essbereich
- einem Bad mit Fenster und mit Dusche und WC
- einem Bad mit Fenster und kleiner Wanne - im Grundriss anders dargestellt
- alle Böden sind gefließt
- Fußbodenheizung
Zur Wohnung gehört ein großer geräumiger Keller mit Fenster und zwei Außenstellplätze für zzgl. 8.000,00 € pro Stellplatz.
Die Wohnung hat eine Konzession für Ferienvermietung.
Sigmarszell ist eine Gemeinde im schwäbischen Landkreis Lindau (Bodensee), Bayern.
Die Gemeinde liegt am Rand der Westallgäuer Landschaft, etwa 7 km vom Bodensee entfernt
Die Wohnung befindet sich im Zentrum vom Sigmarszell, ca. 200 Meter vom Rathaus entfernt.
Fußläufig erreicht man das Ärztehauszentrum, die Apotheke und einen Kindergarten.
In der näheren Umgebung, finden sich typische Einrichtungen wie Einkaufsmöglichkeiten, Restaurants, auch einfache Nahversorgungsangebote.
Die Umgebung ist ländlich geprägt mit Blick auf die Allgäuer Landschaft und teils mit Blick zum Bodensee.
Sämtliche Angaben dieses Exposés basieren auf uns erteilten Informationen.
Eine Haftung für deren Richtigkeit und Vollständigkeit können wir daher nicht übernehmen.





















